
Departamentos Colomos
Guadalajara, Jalisco, 2024
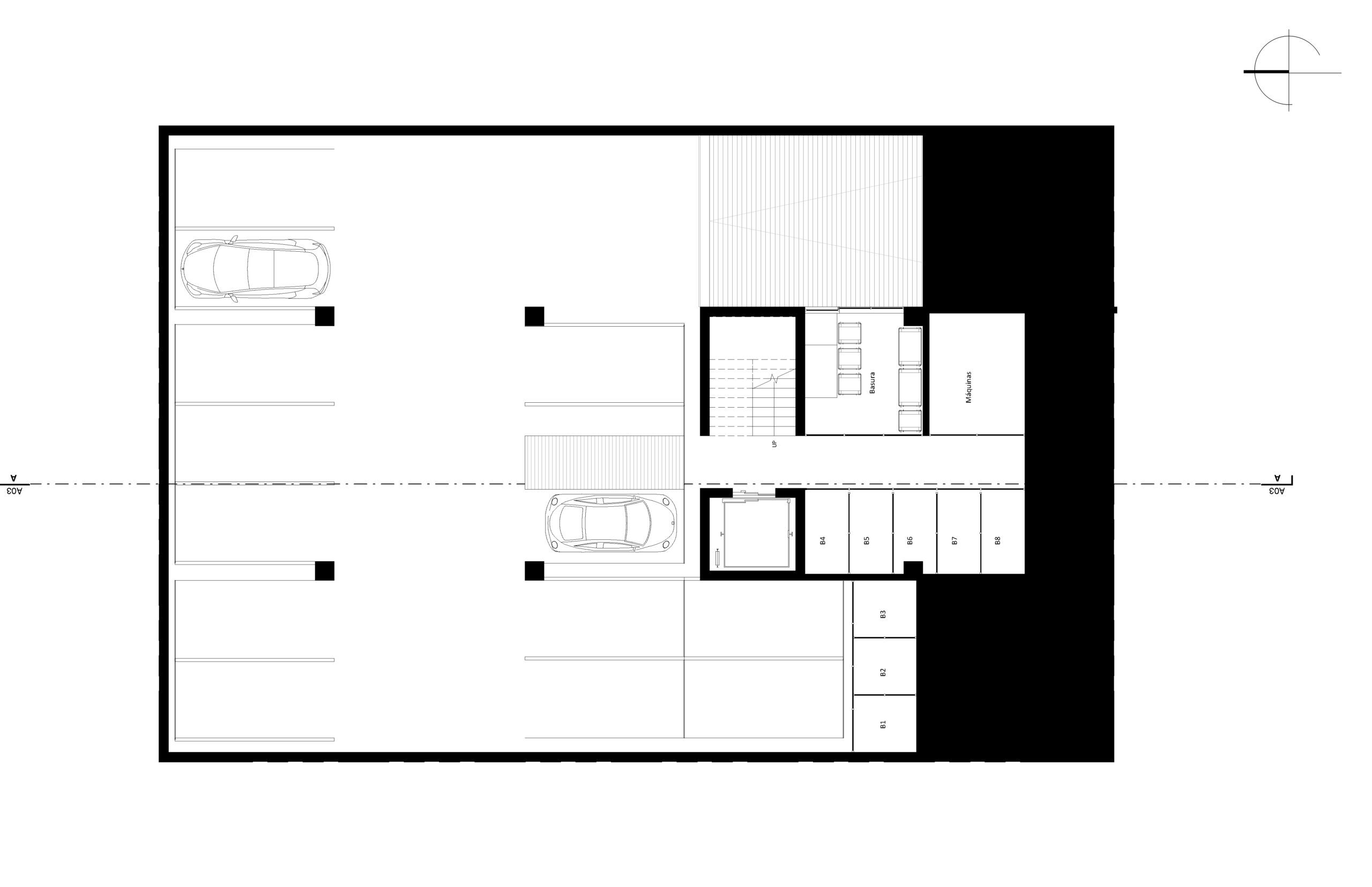
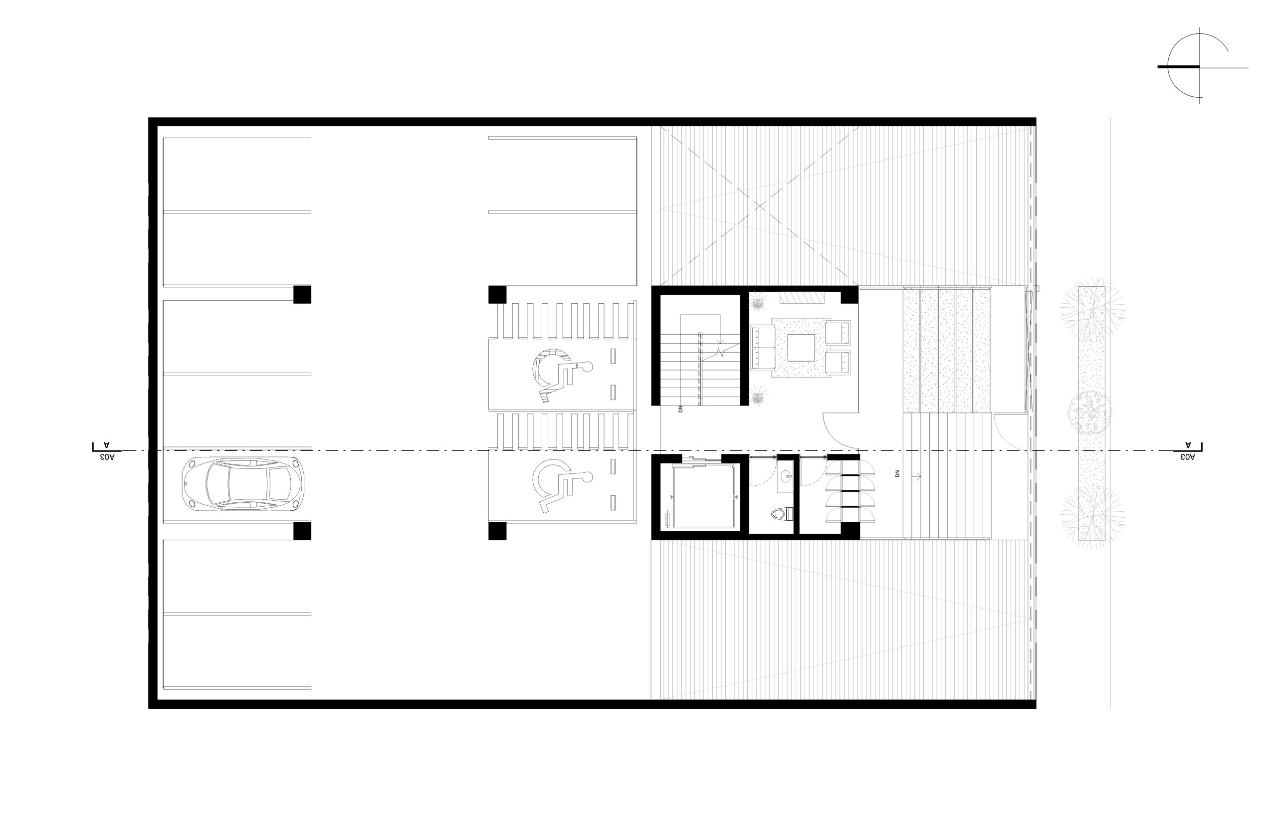
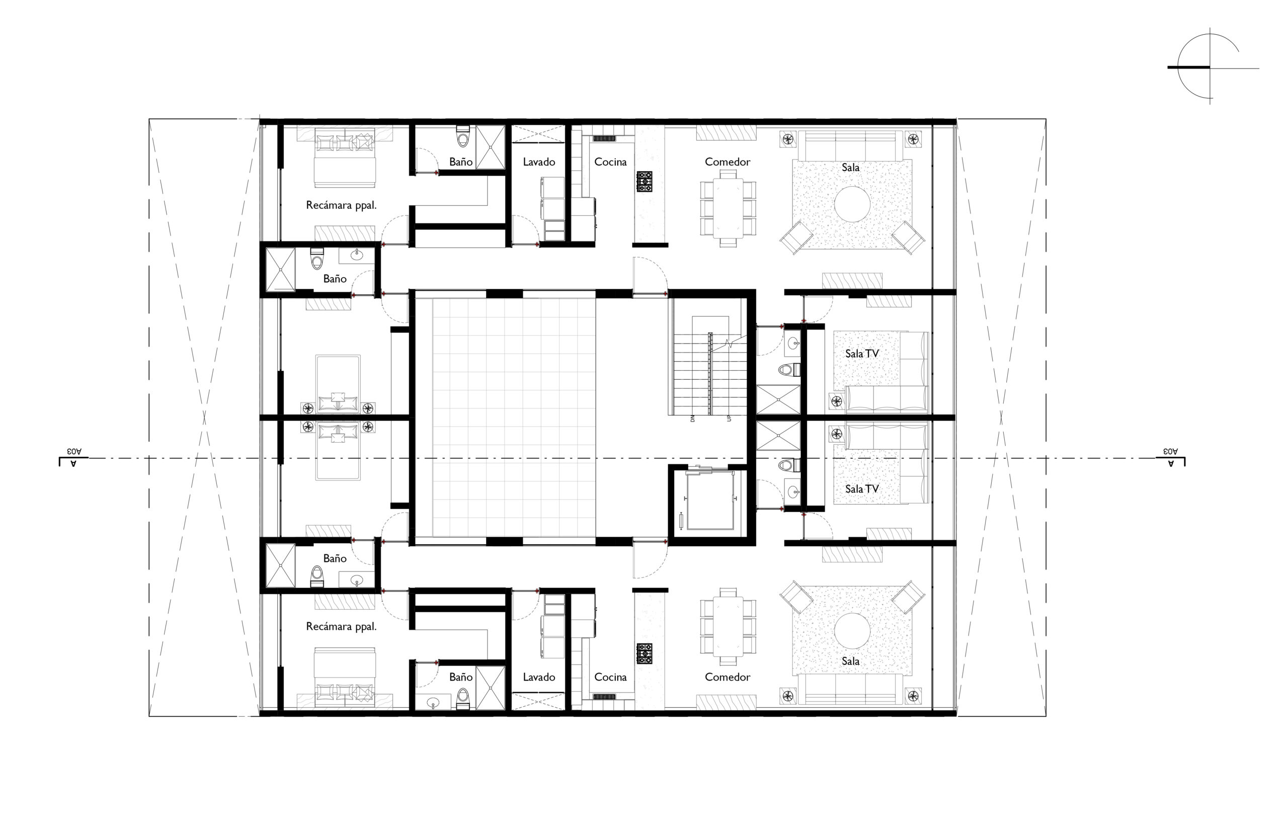
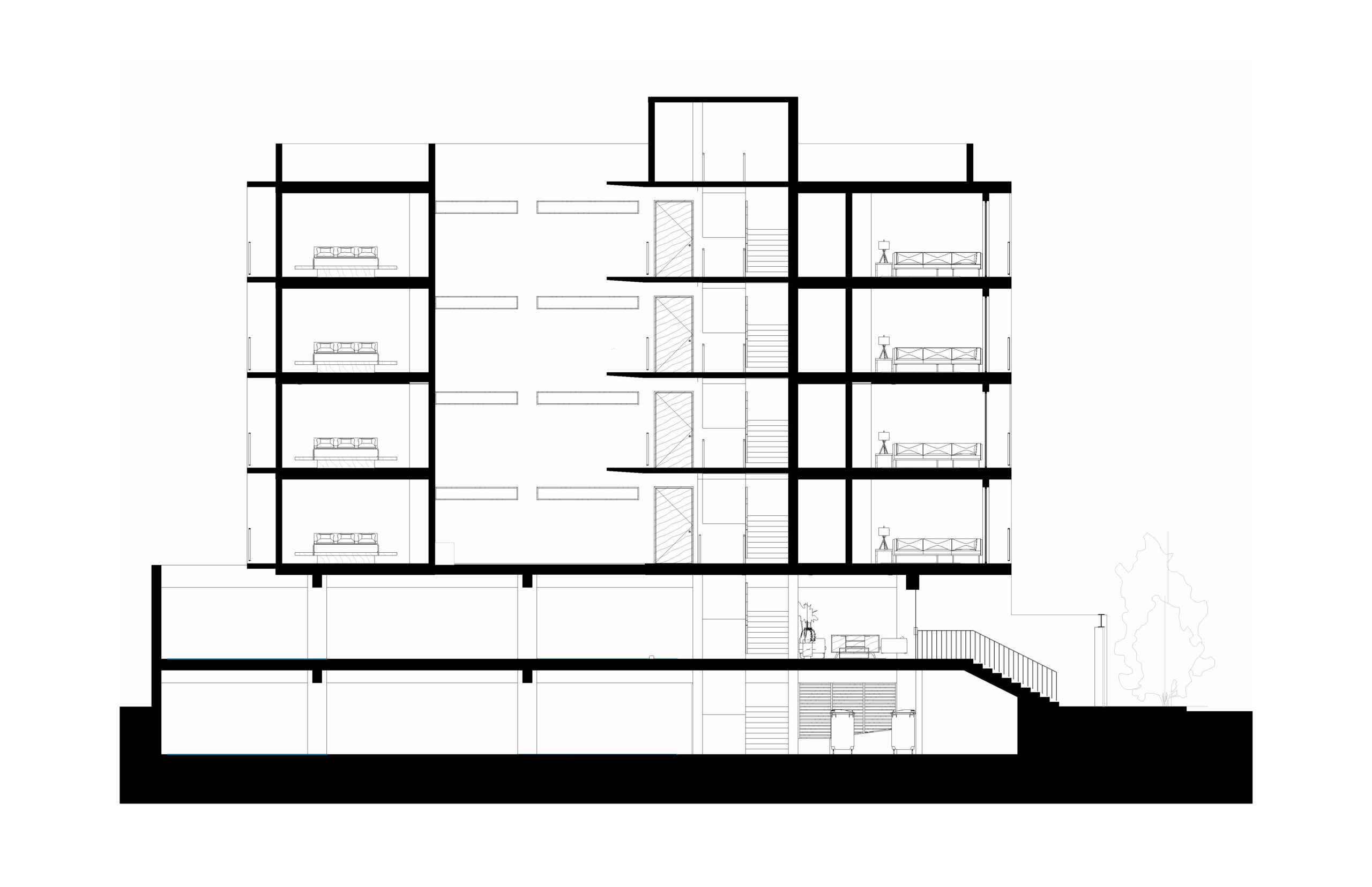
Proyecto de vivienda vertical en cuatro niveles, conformado por tres unidades habitacionales —una por nivel— y un nivel de estacionamiento a nivel de calle.
Cada departamento está diseñado para optimizar funcionalidad y confort, integrando: Sala–comedor, cocina, medio baño para visitas, tres recámaras (cada una con baño completo) y área de servicios independiente.
La circulación vertical se resuelve mediante un cubo de escaleras ubicado al fondo del edificio, lo que permite liberar las fachadas principales y maximizar la iluminación natural.
Se propone una estructura en concreto aparente modulado, seleccionada por su durabilidad, bajo mantenimiento y eficiencia constructiva. Como complemento, se incorpora ladrillo prefabricado en las envolventes para mejorar el desempeño térmico, especialmente relevante debido a la orientación del edificio.
Esta combinación de materiales busca lograr un equilibrio entre estética, funcionalidad y sustentabilidad, ofreciendo un edificio eficiente y de larga vida útil.
Arquitecto
Neil Damy
Colaboradores
Nélida Leaño Ballesteros
Gabriela Gutiérrez Garay
Superficie de terreno
600 m2
Superficie de construcción
2820 m2








